代々木上原の賃貸 ハビタット
管理画面
12
1
2
3
4
5
6
7
8
9
10
11
12
13
14
15
16
17
18
19
20
21
22
23
24
25
26
27
28
29
30
31
2025.12.13
[PR]
×
[PR]上記の広告は3ヶ月以上新規記事投稿のないブログに表示されています。新しい記事を書く事で広告が消えます。
2025/12/13 (Sat)
2015.06.17
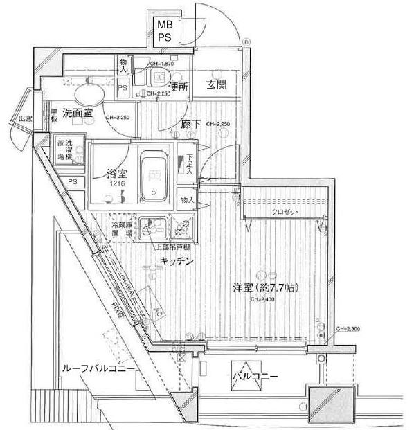
デュオ・スカーラ代々木上原 501号室 空室情報!!
☆
デュオ・スカーラ代々木上原501号室
☆
セキュリティ設備充実の分譲賃貸マンション!!
7.7帖のお部屋は南向きの角部屋2面採光日当たり良好
またバルコニーとルーフバルコニーの付いて開放感もバッチリです
独立洗面台や追炊き機能など設備面は問題なし!セキュリティもしっかりしていますので安心して生活が出来ます
ペット・SOHOも相談可能です!
デュオ・スカーラ代々木上原
のお問い合わせは
代々木上原賃貸のハビタット
までご連絡を!!
PR
2015/06/17 (Wed)
デュオ・スカーラ代々木上原 501号室 空室情報!!
Comment(0)
プロフィール
HN:
株式会社ハビタット
性別:
非公開
カテゴリー
未選択(7)
アトラス富ヶ谷103号室(1)
フォレシティ富ヶ谷506号室(1)
コンフォーリア代々木上原 空室情報!!(1)
☆新築賃貸マンション☆代々木パークハイツ☆内覧会☆(1)
アンソレイユ代々木上原 303号室 空室情報!!(1)
クリサンテ 2005号室 空室情報!!(1)
代々木 MK COURT 103号室 空室情報!!(1)
イデー ルームズ上原601号室 なんと賃料ダウン!!(1)
プレミアブラン代々木公園204号室 空室情報!!(1)
L.H神山町 202号室 空室情報!!(1)
パークキューブ代々木富ヶ谷 803号室 空室情報!!(1)
ヒューリックコート元代々木 205号室 空室情報!!(1)
コンフォリア代々木上原 602号室 空室情報!!(1)
オーベル代々木上原 206号室 空室情報!!(1)
フランドゥール代々木大山 608号室 空室情報!!(1)
コリーナ代々木上原 105号室 106号室 空室情報!!(1)
フレスカ代々木上原Ⅱ 303号室 空室情報!!(1)
Luna rossa渋谷 2A号室 空室情報!!(1)
BORU NH(ボル ニシハラ) 202、302号室 空室情報!!(1)
THEパームス代々木上原コスモテラス 102号室 空室情報!!(1)
ガーラ・プレシャス代々木上原 603号室 空室情報!!(1)
ZOOM渋谷富ヶ谷 新築情報!!(1)
エリジェ ティ トミガヤ 103号室 空室情報!!(1)
シエル代々木上原 101号室 空室情報!!(1)
ガーデン第1ビル 303号室 空室情報!!(1)
コンフォリア代々木上原 1001号室 空室情報!!(1)
カスタリア代々木公園 302号室 空室情報!!(1)
代々木カサグランデ 103号室 空室情報!!(1)
富ヶ谷スプリングス 904号室 空室情報!!(1)
フラックス代々木公園 301号室 空室情報!!(1)
アヴニール元代々木 208号室 空室情報!!(1)
アリュール代々木上原 104、301号室 空室情報!!(1)
ビラージュ代々木上原 102号室 空室情報!!(1)
アパートメンツ北沢KEYAKI 108、202号室 空室情報!!(1)
グローリア初穂代々木上原 305室 空室情報!!(1)
ガーデン上原マンション3 102号室 空室情報!!(1)
シュタイン渋谷富ヶ谷 201号室 空室情報!!(1)
エミネンスアサツマ 501号室 空室情報!!(1)
ミテッツァ代々木公園 403号室 空室情報!!(1)
アクアフレア代々木八幡 306号室 空室情報!!(1)
コレクト元代々木 202号室 空室情報!!(1)
http://www.habitat.co.jp/ha_tou/%E3%83%89%E3%83%9F%E3%83%BC%E3%83%AB%E5%88%9D%E5%8F%B0/(0)
ドミール初台 空室情報!!(1)
シンカ上原 105号室 空室情報!!(1)
フォレシティ富ヶ谷 703号室 空室情報!!(1)
ザ・ヒルズ代々木上原 空室情報!!(1)
パークウエスト 203号室 空室情報!!(1)
プリエール大山 新築情報!!(1)
サンホームズ代々木上原 106号室 空室情報!!(1)
ウエストフラット 4F 空室情報!!(1)
ウイハイツ 307号室 空室情報!!(1)
ボアセイズ 201号室 空室情報!!(1)
Graticcio(グラティッシオ) 202号室 空室情報!!(1)
グレイスコート代々木公園 6F 空室情報!!(1)
RAFFINE TOMIGAYA 101号室 空室情報!!(1)
ベルク ブルーメ タクミ 203、301号室 空室情報!!(1)
グレース代々木 102号室 空室情報!!(1)
新築 カマラード代々木上原 募集開始!!(1)
エイトハウス代々木上原 101号室 空室情報!!(1)
Court Oriel(コートオリエール) 101号室 空室情報!!(1)
アパートメンツ代々木上原 102号室 空室情報!!(1)
Luna Rossa渋谷 301号室 空室情報!!(1)
Gクレスト 102号室 空室情報!!(1)
パークリュクス初台 404号室 空室情報!!(1)
メゾン元代々木 102号室 空室情報!!(1)
CSヒルズ 103号室 空室情報!!(1)
上原クレストハウス 101号室 空室情報!!(1)
(仮)西原3丁目メゾン 新着情報!!(1)
ruhe(ルーエ) 新築情報!!(1)
エイトハウス 203号室 空室情報!!(1)
代々木パークハイツ 202号室 空室情報!!(1)
シャトー代々木 103号室 空室情報!!(1)
新築情報 エクサム代々木 募集中!!(1)
新築情報 ガーデン富ヶ谷 募集開始!!(1)
グリーンメゾン 201号室 空室情報!!(1)
新築情報 エクサム代々木 募集開始!!(1)
M's代々木上原 102号室 空室情報!!(1)
デコート代々木上原 204号室 空室情報!!(1)
代々木の森のマンション 103号室 空室情報!!(1)
大山Place 202号室 空室情報!!(1)
デュオ・スカーラ代々木上原 501号室 空室情報!!(1)
グレース代々木 201号室 空室情報!!(1)
セーガ上原 101号室 空室情報!!(1)
代々木上原128 OOK号室 空室情報!!(1)
サンテラス代々木上原 302号室 空室情報!!(1)
サンホームズ代々木上原 207号室 空室情報!!(1)
イルサント代々木上原 411号室 空室情報!!(1)
DWELL西原 303号室 空室情報!!(1)
GRIYA代々木上原 201号室 空室情報!!(1)
BORU NH 103号室 空室情報!!(1)
プラウドフラット代々木上原 701号室 空室情報!!(1)
ヴァンヴェール 102号室 空室情報!!(1)
コリーナ代々木上原 205 空室情報!!(1)
富ヶ谷桜コーポ 2C号室 空室情報!!(1)
デコート代々木上原 205号室 空室情報!!(1)
プリムローズ 103号室 空室情報!!(1)
ココラス元代々木 403号室 空室情報!!(1)
代々木テラス C号室 空室情報!!(1)
ソフィア 201号室 空室情報!!(1)
最新記事
大山パークハイツ 206号室 空室情報!!
(10/31)
ラ・カーサ下北沢 202号室 空室情報!!
(07/26)
ヒルズ元代々木 202号室 空室情報!!
(07/09)
フレスカ代々木上原 302号室 空室情報!!
(07/08)
プレール代々木公園 105号室 空室情報!!
(07/08)
RSS
RSS 0.91
RSS 1.0
RSS 2.0
リンク
管理画面
新しい記事を書く
P R
◆ graphics by
アンの小箱
◆
◆ designed by
Anne
◆
忍者ブログ
[PR]