☆
プレジール代々木302号室 ☆
代々木駅から徒歩1分の築浅へーベルメゾン!
駅近の好立地

それでいて前面の通りは比較的緩やかの人の流れです!2010年築の築浅へーベルメゾン

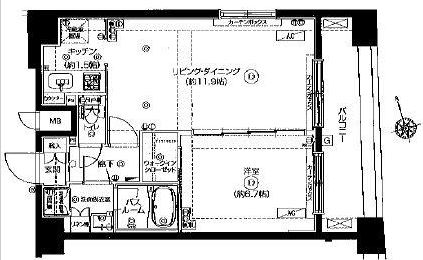
1フロア2世帯のみで中心が共有部となっているのでお部屋は隣り合っていなく独立感があります!このお部屋も全方角に窓が確保されています

DKスペースは9.2帖ですが余計な梁がなくとても使いやすい!振り分けの間取りで寝室がしっかり独立しているのも嬉しいですね
プレジール代々木のお問い合わせは
代々木上原賃貸のハビタットまでご連絡ください!
PR